
TOP
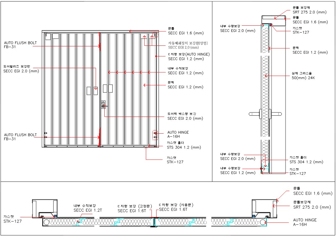
문틀: SECC EGI 1.6T
문짝: SECC EGI 1.2T
채움재: 그라스울(GW) - 24K 50T
도어락: 모티스락 (3850 SECT)
AUTO HINGE (A-16H)
AUTO FLUSH BOLT (FB31)
방화문 인정 제도 - 비차열 60분 인정
한국표준협회 - KS 인증
특허: 제 10-2188406호 (90º 및 180º 개폐가능한 매립형 방화문)
도면

90º 및 180º 개폐 가능한 매립형 방화문
( 특허보유 )


방화문 품질 인정 및 특허 , KS 인증서 보유



AUTO POWER HINGE
