
TOP
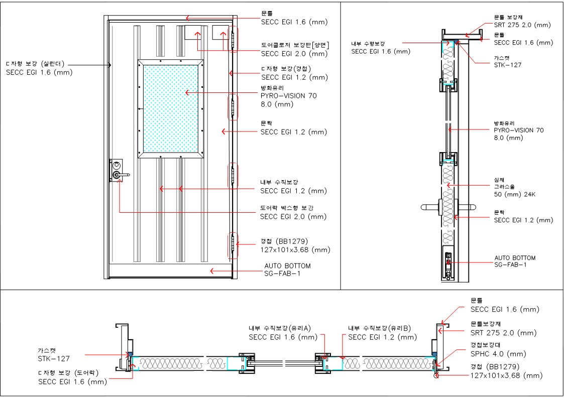
문틀: SECC EGI 1.6T
문짝: SECC EGI 1.2T
문짝 하부: AUTO BOTTOM (SG-FAB-1)
(특허: 제 10-1684220호) / (UL:R39108)
채움재: 그라스울(GW) - 24K 50T
도어락: 모티스락 (3850 SECT)
경첩 : 5인치 (BB1279)
방화 유리 : 한글라스 8T (PRYO-VISION 70)
방화문 인정 제도 - 비차열 60분 인정
한국표준협회 - KS 인증
특허: 제 10-1684220호 (방화문용 틈새 막음 장치)
특허: 제 10-2473241호 (탈부착 가능한 방화 유리틀이 구비된 방화문)
UL인증서 - R39108 (AUTO BOTTOM / SG-FAB-1)
도면

AUTO BOTTOM (SG-FAB-1) / 문턱 없는 방화문
( 특허보유 및 UL인증 획득 )



방화문 품질 인정 및 KS 인증서 보유


탈부착 가능한 유리 방화문 특허 보유

