TOP

제품소개

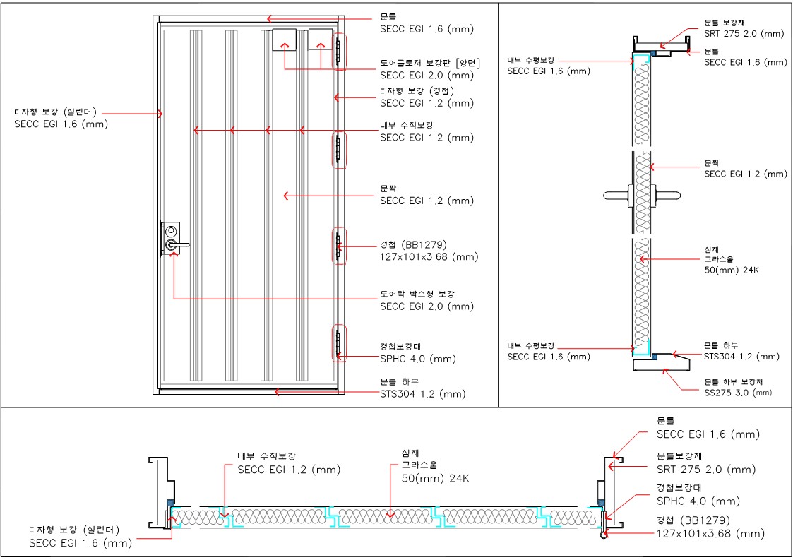
FSD-A-TYPE-SILL-D1 (일반 방화문 편개)
-재질

문틀: SECC EGI 1.6T

문짝: SECC EGI 1.2T

채움재: 그라스울(GW) - 24K 50T

-부속품

도어락: 모티스락 (3850 SECT)

경첩 : 5인치 (BB1279)

-인증현황

방화문 인정 제도 - 비차열 60분 인정

한국표준협회 - KS 인증

상세설명

 

도면

 

 

 

 



 

 

 

방화문 품질 인정 및 KS 인증서 보유