TOP

제품소개

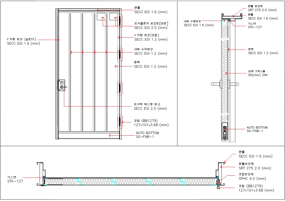
FSD-A-TYPE-A/B-D1 (문턱없는 일반 방화문 편개)
-재질

문틀: SECC EGI 1.6T

문짝: SECC EGI 1.2T

문짝 하부: AUTO BOTTOM (SG-FAB-1)

(특허: 제 10-1684220호) / (UL:R39108)

채움재: 그라스울(GW) - 24K 50T

-부속품

도어락: 모티스락 (3850 SECT)

경첩 : 5인치 (BB1279)

-인증현황

방화문 인정 제도 - 비차열 60분 인정

한국표준협회 - KS 인증

특허: 제 10-1684220호 (방화문용 틈새 막음 장치)

UL인증서 - R39108 (AUTO BOTTOM / SG-FAB-1)

상세설명

 

도면

 

 

 



 

 

 

AUTO BOTTOM (SG-FAB-1) / 문턱 없는 방화문

( 특허보유 및 UL인증 획득 )

 

 

 

 

 



 

 

 

방화문 품질 인정 및 KS 인증서 보유