
TOP
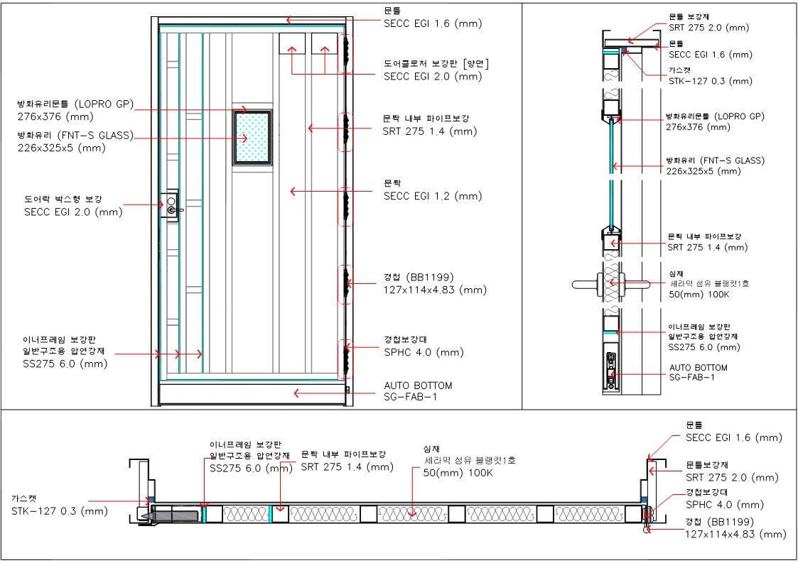
문틀: SECC EGI 1.6T
문짝: SECC EGI 1.2T
문짝 하부: AUTO BOTTOM (SG-FAB-1)
(특허: 제 10-1684220호) / (UL:R39108)
채움재: 세라크울(GW) - 100K 50T
도어락: 모티스락 (L9070)
경첩 : 6인치 (BB1199)
3시간 방화 유리 (FNT-S GLASS)
3시간 방화유리문틀 (LOPRO-GP)
방화문 인정 제도 - 비차열 60분 인정
특허: 제 10-1684220호 (방화문용 틈새 막음 장치)
UL인증서 - R39108 (AUTO BOTTOM / SG-FAB-1)
UL인증서 - R40257 , R40203 (편개 3시간 내화 인증)
도면

UL_10C (3시간 내화) 인증 방화문

AUTO BOTTOM (SG-FAB-1) / 문턱 없는 방화문
( 특허 보유 및 UL 인증 획득 )



방화문 품질 인정 및 KS 인증서 보유


3시간 내화 성능 유리,유리틀 사용
( UL 인증 제품 )



